• 瀏覽人數: 7
  • 收藏: 0
  • 最後更新: 2026.03.31

聖文心廣場商辦|可改住家

售價:$1088 萬
類型
大樓華廈
社區
聖文心廣場
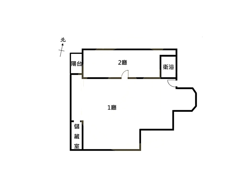
格局
2廳1衛
權狀坪數
總建66.79坪,室內46.83坪

屋況特色

1.繁華的東山路商圈,鄰近台鐵太原站與捷運四維國小站,也能快速銜接台74線
2.東山路最精華路段。全聯、楓康超市、小北百貨及燦坤等,餐飲選擇豐富
3.頂樓有基地台:免管理費。高樓層無限視野、一層兩戶-單純
4.低單低總,微型創業與置產首選。高 CP 值與穩定的收益潛力

房屋介紹

  • 坪數說明:總建坪66.79坪,室內46.83坪
  • 屋齡:35年
  • 現況:空屋
  • 裝潢程度:簡易裝潢
  • 型態:成屋
  • 樓層:16F/16F

格局圖

門市資訊
主打物件
聯絡我們

Listing Title