• 瀏覽人數: 96
  • 收藏: 0
  • 最後更新: 2026.01.28

太原車站全新整理三房含車位

售價:$1238 萬
類型
大樓華廈
社區
永聚一生
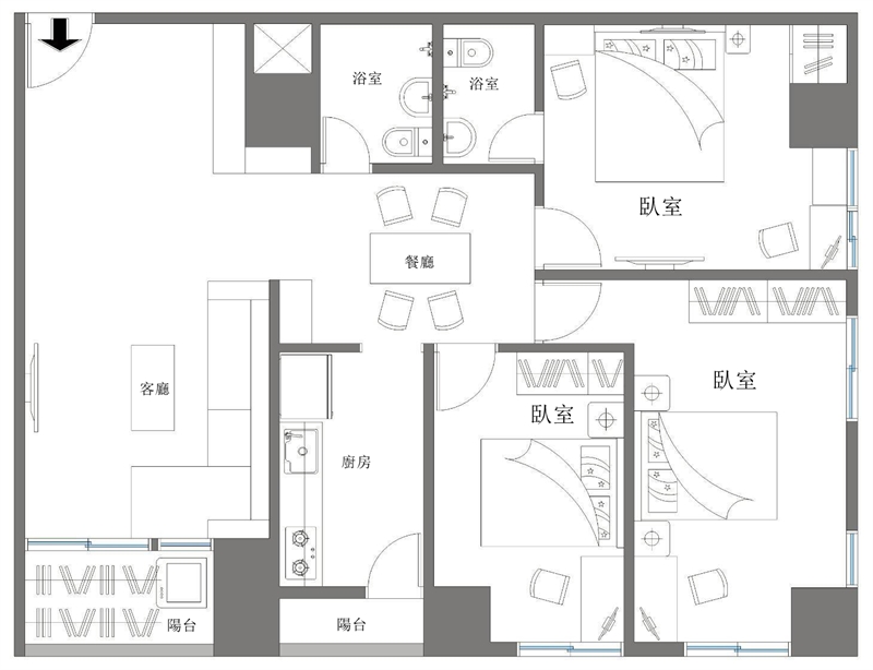
格局
3房2廳2衛
權狀坪數
總建41.74坪,室內31.51坪

屋況特色

1.太原車站步行三分鐘即可到達
2.公園市場一次到位成熟商圈裡的高CP值
3.全新整理格局方正好規劃
4.低總價三房含車位地段極佳

房屋介紹

  • 坪數說明:總建坪41.74坪,室內31.51坪
  • 屋齡:31.7年
  • 現況:空屋
  • 裝潢程度:簡易裝潢
  • 型態:成屋
  • 樓層:6F/15F

格局圖

門市資訊
主打物件
聯絡我們

Listing Title