• 瀏覽人數: 21
  • 收藏: 0
  • 最後更新: 2026.04.15

四維國小興安商圈臨路透天

售價:$2880 萬
類型
透天
社區
無社區資訊
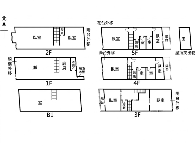
格局
8房1廳5衛
權狀坪數
總建103.13坪,地22.99坪

屋況特色

1.收租置產首選,黃金地段機能,鬧中取靜的「臨路」優勢
2.近四維國小、北興國中,約10米活路停車方便
3.店住合一優質選擇,金店面文武百市都讚
4.稀有釋出敬請把握,住、行、育、樂一次滿足

房屋介紹

  • 坪數說明:總建坪103.13坪,土地22.99坪
  • 屋齡:35.7年
  • 現況:自用
  • 裝潢程度:尚未裝潢
  • 型態:成屋
  • 樓層:B1-5F/5F

格局圖

門市資訊
主打物件
聯絡我們

Listing Title