• 瀏覽人數: 15
  • 收藏: 0
  • 最後更新: 2025.10.23

品味建築|仁美全新3車電梯別墅

售價:$4880 萬
類型
別墅
社區
無社區資訊
格局
4房3廳5衛
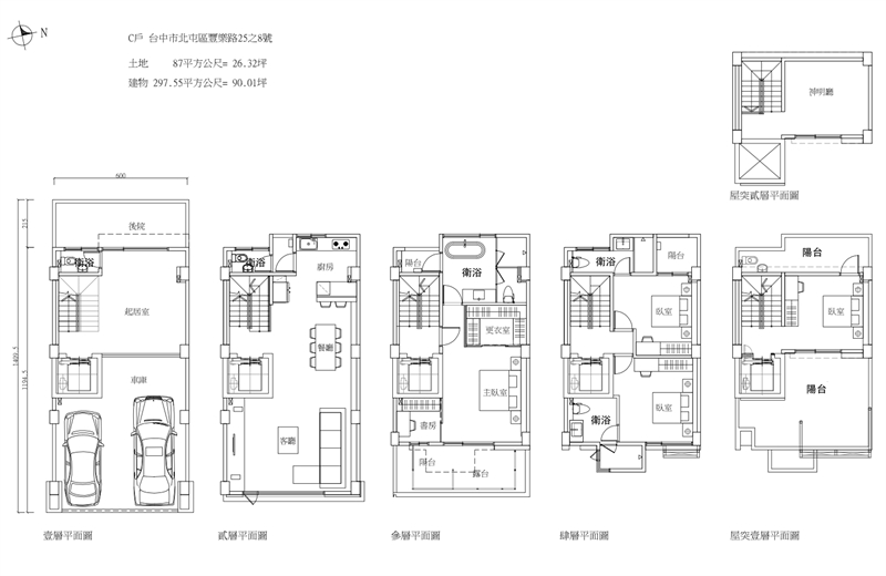
權狀坪數
總建90.01坪,地26.32坪

屋況特色

1.🔰 外觀前衛霸氣|6米大面寬|全新完工
2.🔰 誠意出售|行情價即售
3.🔰 可停3車|可依照客戶需求進行格局變更
4.🔰 實力建商|多筆競賽作品

房屋介紹

  • 坪數說明:總建坪90.01坪,土地26.32坪
  • 屋齡:1.4年
  • 現況:空屋
  • 裝潢程度:高檔裝潢
  • 型態:成屋
  • 樓層:0F/6F

格局圖

門市資訊
主打物件
聯絡我們

Listing Title