• 瀏覽人數: 12
  • 收藏: 0
  • 最後更新: 2026.03.09

勝利商圈全新九米面寬電梯別墅

售價:$4460 萬
類型
別墅
社區
無社區資訊
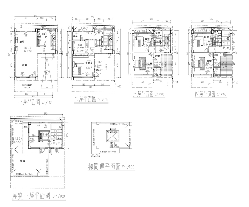
格局
5房1廳6衛
權狀坪數
總建85.62坪,地34坪

屋況特色

1.正勝利商圈|大地坪雙車電梯別墅
2.面寬9米、前臨路,後臨活巷稀有釋出
3.南北座向,五房皆為套房,格局方正
4.二樓整層主臥,三四樓雙套房,頂樓大露台

房屋介紹

  • 坪數說明:總建坪85.62坪,土地34坪
  • 屋齡:0.3年
  • 現況:空屋
  • 裝潢程度:簡易裝潢
  • 型態:成屋
  • 樓層:1-5F/5F

格局圖

門市資訊
主打物件
聯絡我們

Listing Title